last updated: 9th November 2024 - Day 236 - Launch Tubes #2

Safety First

Search

Site Index

Tutorials

Articles

Rocket Gallery

Labs

Where To Buy

10 Challenges

Links

Blog

Glossary

Contact Us

About


Construction - Basic

Body

Ring Fins

Flat Fins

Nozzle

Nosecone

Construction - Advanced

Robinson Coupling

Splicing Bottles #1

Splicing Bottles AS#5

Reinforcing Bottles

Side Deploy #1

Side Deploy #2

Mk3 Staging Mechanism

Multi-stage Parachutes

Fairings

Construction - Launchers

Gardena Launcher

Clark Cable-tie

Medium Launcher

Cluster Launcher

Launch Abort Valve

Quick Launcher

How It Works

Drop Away Boosters

Katz Stager Mk2.

Katz Stager Mk3.

DetMech

Dark Shadow Deployment

Articles

Recovery Guide

Parachutes

How Much Water?

Flying Higher

Flying Straight

Building a Launcher

Using Scuba Tanks

Nozzles

Video Taping Tips

MD-80 clone

Making Panoramas

Procedures

Burst Testing

Filling

Launching

Recovery

Electronics

Servo Timer II

V1.6

V1.5

V1.4

V1.3, V1.3.1, V1.3.2

V1.2

Deploy Timer 1.1

Project Builds

The Shadow

Shadow II

Inverter

Polaron G2

Dark Shadow

L1ght Shadow

Flight Log Updates

#236 - Launch Tubes #2

#235 - Coming Soon

#234 - Coming Soon

#233 - Coming Soon

#232 - Coming Soon

#231 - Paper Helicopters

#230 - Tajfun 2 L2

#229 - Mac Uni AON

#228 - Tajfun 2 Elec.

#227 - Zip Line

#226 - DIY Barometer

#225 - Air Pressure Exp.

#224 - Tajfun 2

#221 - Horizon Deploy

#215 - Deployable Boom

#205 - Tall Tripod

#204 - Horizon Deploy

#203 - Thunda 2

#202 - Horizon Launcher

#201 - Flour Rockets

#197 - Dark Shadow II

#196 - Coming Soon

#195 - 3D Printed Rocket

#194 - TP Roll Drop

#193 - Coming Soon

#192 - Stager Tests

#191 - Horizon

#190 - Polaron G3

#189 - Casual Flights

#188 - Skittles Part #2

#187 - Skittles Part #1

#186 - Level 1 HPR

#185 - Liquids in Zero-G

#184 - More Axion G6

#183 - Axion G6

#182 - Casual Flights

#181 - Acoustic Apogee 2

#180 - Light Shadow

#179 - Stratologger

#178 - Acoustic Apogee 1

#177 - Reefing Chutes

#176 - 10 Years

#175 - NSWRA Events

#174 - Mullaley Launch

#173 - Oobleck Rocket

#172 - Coming Soon

#171 - Measuring Altitude

#170 - How Much Water?

#169 - Windy

#168 - Casual Flights 2

#167 - Casual Flights

#166 - Dark Shadow II

#165 - Liquid Density 2

#164 - Liquid Density 1

#163 - Channel 7 News

#162 - Axion and Polaron

#161 - Fog and Boom

#1 to #160 (Updates)

 

The Shadow - Build Log

Introduction

This is the build log of our next rocket project called "The Shadow". This water rocket doesn't use PET bottles or FTC tubes as the basis for a pressure chamber. Many of the construction techniques are borrowed from the model rocketry world. Rather than scattering the development details of this rocket all over the flight log updates, we have decided to keep a dedicated page for this rocket's development. The flights of this rocket will still be in the regular flight log updates along with our regular development.

We will try to keep this log updated more frequently to reflect the current status of the build. You can click on the images to get a more detailed view.

The log is in chronological order so to see the most recent post you need to Jump To The Bottom. You may need to refresh this page to see any latest updates.

CAUTION: If you are going to attempt to build rockets such as these, please exercise extreme care when testing and flying them. This rocket uses high pressures that can potentially cause severe injury to yourself and those around you. Always double check your equipment and review safety procedures before every test and flight. See more information on Safety Guidelines.

Build Log

13 July 2011 - Started serious design. After searching on and off for a few weeks for sources of lightweight tubing, we finally decided to make our own as we could directly control the properties. There is a good description on the Australian rocketry forum http://ausrocketry.com/forum/viewtopic.php?f=11&t=1966  describing the process so we thought we would give it a go. Sealing the end of the tube will need to be worked out. Either a floating end cap and nozzle with o-rings and screwed down or permanently glued into position.


14 July 2011 - We found a 60mm section of PVC pipe about 30cm long under the house. We sanded it with 1000 grit sand paper and removed any scratches and bumps. We then applied a couple of coats of mold release, and polished it. We then cut a sheet of glad bake baking paper in half and wrapped it around the tube and attached the ends with masking tape. We wrapped 85gsm glass cloth about 20cm wide over the tube 5 times and used West Systems as the epoxy. This was to test the whole manufacture process and see how easily the tube could be removed from the PVC pipe. We also wanted to see if we could make the tube non-porous without an internal bladder, and see what it's general strength would be. We set the tube on the rotisserie to cure.


15 July 2011 - We removed the test tube from the PVC pipe the next day. It came off very easily. The surface finish looks good and it also looks like it may be non porous, but won't know until it's tested. We bought 60mm PVC end caps and 1m x 60mm PVC pipe at the local hardware store.


First tube - with ends trimmed
     

16 July 2011 - We sanded the PVC pipe with 1000 grit sand paper, applied a coat of mold release and polished the pipe. We also made a new stand to hold the tube for rolling it. We also bought foam roller brushes from the local hardware store as doing long tubes was going to be too slow with a brush.


New 1m PVC mandrel with extended stand.
     

17 July 2011 - We extended the rotisserie to fit the new long PVC pipe and made a new axel to hold the PVC mandrel.  We then laminated the first test sample to be pressure tested. This one was more than double the length of the first one. It uses 2 wraps of 85gsm followed by 3 wraps of 200gsm and finished with almost 3 wraps of 85gsm. This combination used up 3 pumps of epoxy. The roller made for quick and even spread of the epoxy although it looks like there are more surface bubbles. The epoxy was just poured on from the mixing container. The Glad bake paper was cut in half lengthways and spiral wound this time with about 2cm overlap and secured with masking tape to the pipe so it would not unravel.   


Extended rotisserie

Letting the second tube cure near some heat lamps.
   

18 July 2011 - We removed the test sample from the PVC pipe. It just came off without any effort at all, I expect doing a full length tube should not be an issue. The sample looks very good and very strong. The surface bubbles seen during curing were almost all gone.

Weight of sample is 122 grams for 345mm with an average wall thickness of 1.1mm. We trimmed the end sections of the sample with a hacksaw.

I spent some time Investigating the differences between s-glass and e-glass - S-glass is apparently up to 30% stronger and 15% stiffer than e-glass. Cool, though I don't have the cost differences yet.


Second tube as it came off the mandrel.
     

19 July 2011 - We machined down an end cap to fit inside the tube. It's a little distorted because of how the lathe chuck grips it. We need to find a better way of doing this.


23 July 2011 -We machined down another two end caps. We also machined two wooden blocks to be used for reinforcing the end caps. We used one of these blocks wedged inside the end cap to get a good grip without distortion. Dad also machined a brass hose adapter to fit into the end cap for pressure testing. 

 
Components for pressure testing the tube.

Hose adapter for pressure testing the tube
 

 

 
The hose adapter fits on the inside

Reverse view of the adaptor.

Wooden blocks are fitted inside the
end caps to reinforce them.

3 August 2011 - We made up a new fiberglass tube 50cm long. 136 grams. This one used the 85gsm cloth only with 2 x 800mm long sections. The standard cloth width was just cut in two.

We also glued the wooden reinforcements into the ends of the caps, and glued in the hose adaptor.


The hose adaptor is glued into the cap with
epoxy to seal it.

The wooden blocks are also glued in place
with the epoxy
   

We made up two fin prototypes. One used a 1mm balsa core with a first layer of 200gsm cloth with another layer of 85gsm cloth on top. This was done to both sides. A second fin was made with a 2mm balsa core with the same 200gsm and 85gsm sandwich.. This was then placed between two sheets of baking paper and onto a sheet of glass with a flat board on top. The whole thing was then weighed down with a couple of bricks. The 1mm balsa sheet had a slight bend in it when putting together. 


Fin fiberglass/balsa sandwiches ready to be cut out.
     

4 August 2011 - Removed the tube off the mandrel and again it was very easy to pull off. Full length tubes should not be an issue. To remove the baking paper from inside the tube is easily done by inserting a broomstick and turning it to unwind the paper from the inside wall of the tube. The tube was trimmed and the 475mm length weighed 132 grams. This would make a 2m tube weigh 555 grams + coupling weight. 


The new tube just after being pulled off the mandrel.
     

The fin prototypes looked reasonable and both were nice and flat with a good surface finish. After cutting them out, both the 1mm and 2mm balsa versions weighed in at 25 grams. While they were quite stiff when trying to bend along the fibers, they were relatively easy to twist which would unlikely to be suitable for high speed. The fin thicknesses were 2.5mm and 3.4mm. One way to stop the twisting may be to rotate one of the glass layers 45 degrees. Though it still looks like we may need to go with 1mm carbon fiber fins because of it's stiffness and weight. 


Test fins made from two different thicknesses of balsa.
 

 
   

17 August 2011 - Today we glued in the end caps with Sikaflex 11FC into the long tube. The idea is that the Sikaflex will seal the join rather than necessarily hold it together. The bulk of the strength will come from a set of screws that will hold the end caps in. The one concern we have with just using epoxy to seal the end caps is that as the tube pressurises it will swell and try to lift away from the edges of the cap breaking the seal. We may also consider just gluing with epoxy a small ring of fiberglass behind the end cap to the inside wall of the tube, perhaps even 5mm wide. This would be far easier and lighter and have less drag than the screws. 


End cap glued into the tube with Sikaflex 11FC

Hose adapter end plug glued into the
other end of the tube.

The whole tube
 

 


Some wood of cuts to be made into the
nosecone plug

Cut to size and ready for gluing.
   

21 August 2011 - We drilled 8 evenly-spaced holes and tapped them at either end of the test tube. We screwed the end caps down with 3mm SS screws. The line of screws is about 7mm back from the inner edge of the end cap. We then screwed in the quick release adaptor and pressure tested it to 50psi to check for leaks. We only used air for this test and will need to do a hydro test when testing to higher pressures. The tube was sealed well and we're glad that the tube was non-porous which was an initial concern we had when making our own tubes.


Drilling the holes for the screws.

Drilled holes.
   

 


Tapping the holes for the screws

8 stainless steel screws
   

 

   
Tube ready for testing

Quick seal check at 50 psi.

 


27 August 2011 - Today we bought a 3m long 60mm PVC pipe from Bunnings to make the longer mandrel so we can make tubes the full width of the glass cloth. We also bought a 1.5m long copper pipe that will be used as a launch tube for the rocket. This also determines the minimum nozzle diameter. The copper tube was chosen so that it can be soldered for mounting or extending.


28 August 2011 - Pressure testing time. Today we hydrostatically tested the tube to see how well the end caps would hold and how strong the tube is. We placed the tube inside the scuba tank again to protect against flying debris. We used our high pressure panel to get the tube up to 300psi as that is the maximum it will go up to.   


Setting up for a high pressure test

The tube is completely filled with water
   

 

   
Tube being placed inside the scuba
tank to reduce noise and
potential debris.

The end is stuffed full of rags and concrete pavers pilled up
against it. Extra foam placed over the to reduce noise.

When we shut off the air supply we could see that the line pressure was slowly dropping which meant there was a leak. We let the pressure drop to around 100psi before looking into the scuba tank. On inspection we could see the tube was leaking from both ends. As more or less expected the screws had ripped through the fiberglass walls and allowed the cap to move about 5mm at one end and about 2-3mm at the other end. This movement broke the glue seal and allowed the water to flow past the cap. At 300psi there was about 600Kg pushing on the end caps!


Showing how much the screw moved under pressure

Screw removed. The amount of movement was
about 5mm.
   

Although disappointing we learned one way not to seal the end caps. We also know that the tube held at least 300psi which is a good result. Next time we will use our direct HP tank adaptor with a gauge that goes up to 800psi to measure the higher pressures.

We're going to remove the end caps and trim the tube and use it again for the next test. We now have to redesign how the end caps will be sealed. Most likely we are going to machine them out of plastic and use an o-ring to seal them. We are also going to try gluing in the fiberglass support ring to stop the end cap from moving.


30 August 2011 - Today we started designing the parachute deployment mechanism. Due to expected speeds and acceleration we are going with an inline deployment mechanism as opposed to a side deploy that we normally use. Having first considered just using BP like normal rockets do we decided to do a piston ejection method like a lot of people use in FTC rockets.

Examples of piston eject methods: Robert Youens VDTT and Bernard Willaert's remote controlled deployment mechanism #68.

The main reason is that we can test it as much as we need without the need to obtain BP. It also results in cleaner system although it is heavier. 


4 September 2011 - Today we machined down two pieces of PVC plastic so that we can machine the end plugs out of them. We had to attach an adaptor so that we could grip it in the lathe's chuck. Because the other end plug has the hose adaptor, we could just drill a hole through it and hold it with a bolt.


10 September 2011 - Today dad machined down the two end plugs to accurately fit inside the tubes. The hope is that we will be able to re-use these ends on the actual rocket as they are not being glued into the tubes. The nozzle plug has been made with a thread so that we can screw in the hose adaptor that has had a matching thread cut into it. We added an o-ring to this so we didn't have to glue it in place Once the testing is finished we will cut a much bigger thread into this plug that will be used to screw in the nozzle. The end plugs are a little on the heavy side, but not too bad. It should be possible to lighten them in the future,

We also machined up a couple of PVC rings that will be glued behind the end plugs that will hold them in place. Dad also bought the right o-rings (BS-139) during the week so all that is left to do is glue in the rings and we can do another pressure test.



O-rings, plugs and support ring


The hose adaptor is now screwed into the plug and sealed with it's own o-ring.

Test fit inside the tube.

Test fitting the other end plug.

We also built the new stand to allow us to make the longer tubes that are the width of the fiberglass cloth.



O-ring groove diagram and dimensions.


Designing the plugs.
   

12 September 2011 - Today we layed up a new balsa/fiberglass sandwich to be used for the fin set. The 200gsm cloth was bias cut to try to prevent the twist we saw with the previous test. The 85gsm cloth was just straight cut. Again the whole thing was put on a sheet of glass and pressed together with a board and pavers on top. We also glued the three bits of wood together that will be made into the nosecone plug. Lastly we also glued in one of the end caps in the tube to be pressure tested. It was difficult to get the end cap back down after the ring was inserted because we didn't grease the o-ring. We didn't want to apply grease anywhere inside the tube as this may have an adverse effect when gluing the ring in.

The deployment mechanism components are also coming together. We cut up the test fins we made previously and are using the reinforced balsa wood to make up the bulkheads,


Getting ready to make the balsa sandwich.

Gluing the end plug as well as the nosecone plug.
   

13 September 2011 - We started machining the nosecone plug today. We turned it down to a cylinder of about 62mm. The correct elliptical nosecone shape will now be cut into in the next day or so.



Turning down the nosecone plug block of wood into a cylinder.

 
   

14 September 2011 - Spent about an hour and a half machining the nosecone plug down to the right shape. The tip will be made separately because it is difficult to lay the fiberglass over the tip.


Rough cut to correct dimensions

Sanded and almost finished.

Ready for trimming

Trimmed base and tip. The tip of the nosecone will be made separately

We also glued in the other plug but with regular Araldite. We used a little water and bubble bath mixture and coated the inside of the tube and the o-ring so that it would slide in easier.

The fins were cut out of the balsa sandwich and seem reasonably strong. They may break when the rocket lands though. Each fin weighs 14 grams.


 

 

Balsa sandwich cured....

.... and cut up into fins

15 September 2011 - We painted the nosecone plug with the first coat of the clear 2 pack paint (Wattyl Estapol 7008). This is a hard wearing paint we are using to protect the plug.


16 September 2011 - We sanded the first coat with a 1000 grit sandpaper and applied  a second coat of 2 pack paint on the nosecone plug. It's all nice and shiny and smooth now.


Second coat cured on the nosecone plug.
     

We also have decided on a different approach to the parachute deployment today. There were a number of issues with the piston spring mechanism that would have made things a little more complicated, and it relied on a couple of elements that needed to be precision made. Depending on how this alternative works out, we may still come back to the piston ejection design.

Due to the size of the air frame we have decided to build what we are calling the 'Pivot' deployment mechanism. The design is intended to be clean aerodynamically and be able to withstand the high acceleration forces. The design also allows the parachute shock cord to be attached solidly to the air frame in a convenient place (something that is a bit of an issue with piston ejection). The rest of the shock cord will be located in the empty nosecone. The design also lends it self to larger parachutes.


17 September 2011 - Finished the nosecone plug, and polished it with carnauba wax mold release. Then applied a layer of silicone grease and stretched a normal party balloon over the plug. Then applied another layer of silicone grease and stretched another balloon over that. Then repeated with a third balloon, but did not cover the outside of the last one with silicone. I drilled a hole in the bottom of the plug so I could mount it on a bar which made it easier to rotate while laying up the fiberglass. We applied about 4 strips of 200gsm cloth around the plug and then covered it with a further 9 strips of 85gsm cloth for a smooth outside finish. The whole plug was then stood on its end and let cure for about 6 hours at a temp of around 20C. I then put it in the car for another 2 hours as it was around 35C in there. By the evening it was hard enough to work on. We had to cut off the base of the fiberglass with a sharp knife as there is a small recess on the plug and it wouldn't have come off. 


 

Second balloon placed over the plug

Third balloon stretched over the plug.
Fiberglass strips ready to be applied on the plug.

After curing, the tip and base
have been trimmed.

The nosecone slid off very easily. :) The base and tip were then neatly trimmed. We machined the tip from a piece of plastic and epoxied it in place. We roughly sanded the outside of the nosecone, but it will need further work before it is finished.

 

 
Removed from the plug. Leopard spot design
on the 1st balloon.
Wouldn't be a bad nosecone paint job. :)

Base of the nosecone sanded.

Tip machined from plastic fitted,
with nosecone roughly sanded.

We also pressure tested the tube today now that it has had at least 3 days to cure. We took the tube up to 300psi (20.7 bar) and paused to see if there were any leaks and all was good. We then took it up to 380psi ( 26.2 bar ) and the top end cap blew out. The only damage done was to the PVC support ring that was split on one side. The plug and tube were undamaged. You could clearly see that all the glue stayed attached to the tube, and almost none of it stayed attached to the PVC ring. This end cap was glued in with the West Systems epoxy, but I also put on a fairly thin coat on both the surfaces. The grooves in the PVC were also quite shallow compared to the other end. The other end was glued with the normal super strength epoxy.

The test also showed that the tube withstood at least 380psi. By far the highest to date. We also used the big gauge and direct connection to the scuba tank for these tests as the panel can only go to 300psi.


High pressure connection to
tube under test.
 

Tube full of water ready to be inserted into
the scuba tank for testing.

At 380psi the PVC ring came out and cracked.
The tube and end cap were not damaged.
 

18 September 2011 - We spray painted the nosecone with 3 coats of spray putty and then sanded it back to a smooth finish again.

     

20 September 2011 - We machined up a new PVC support ring and this time cut much deeper grooves in it for the epoxy. The end of the fiberglass tube was cut off to remove the section where the glue remained inside the tube. We then glued the new ring in place with the super strength epoxy. We'll give it a full 3 days to fully cure before hydro testing it again.


New PVC support ring with deep grooves

Glued into place
   

We also started prototyping the pivot deployment mechanism tonight. This was basically a test to see how it would go together and how it holds up structurally. So far it looks fairly good so we'll continue with the next step and try to get the prototype to work. The one thing we are always mindful of are the acceleration forces as well as any wind sheer forces after we've had a few high speed failures with other designs. The nosecone is attached to half the payload bay, and the other half the payload bay contains the electronics and release mechanism. The pivot point will be at the bottom of the payload bay with the release point at the top of the bay. A spring behind the parachute will force the nosecone and payload bay to fall to one side once released, pivoting around the lowest point. The pivot is not shown in these photos.

The hollow nosecone is most likely to store the shock cord for the parachute.


Prototyping pivot deployment mechanism

The parachute is stored vertically.

The top section including the nosecone will
separate from the rest of the rocket.
 

24 September 2011 - Now that the epoxy has had at least 3 days to fully cure, we did a hydrostatic pressure test. We pushed it up to 560psi (38.6 bar) without leaks and without bursting the tube. The end caps held up really well too. This was a lot higher than we were expecting. We stopped the test because the hoses aren't rated to very high pressures and so rather than risk bursting a hose we stopped. We are quite happy with the results, and this will allow us to continue development.


Prior to hydro test

Direct connection to the scuba tank for
higher pressure tests.

Tube and end caps still
holding at 560psi.
 

27 September 2011 - Machined a smaller mandrel from the 60mm PVC pipe to allow us to make fiberglass couplers. We had to machine a wooden plug first for the tube so that we could support one end in the lathe. The mandrel was sanded smooth. We then wrapped ~140cm of the 200gsm cloth on the mandrel. We used minimal epoxy (1 pump) for this in order to leave a coarse surface texture which will be used to hold glue when we glue it in place. The exact dimensions are not yet known. We'll have to wait until the morning to test it inside the body tubes.

 

Machining the smaller mandrel for couplers

Laying up a coupler.

The surface texture is made coarse
to enable easier gluing in the body tubes.
 


28 September 2011 - Removed the coupler from the mandrel and trimmed the ends. The coupler was just a little bit oversize, but with sanding it was possible to insert it into the tube a little. It would take a quite a bit of sanding to get the whole coupler in though. So we made another coupler tonight that used 2 less wraps of the glass. This should make it easier to insert into the tube. The glass cloth was 100cm long and we still used one pump of the epoxy. We'll wait until tomorrow again to take it off the mandrel and test it to see how well it fits.


29 September 2011 - After trimming the rough edges, the coupler fit inside the tube, but seemed just a little too loose. So we decided to have another go and made a coupler with 6 wraps. The cloth length was 120cm this time. Back on the rotisserie it went to cure.


30 September 2011 - Finally this coupler was a good snug fit into the body tube. We cut it to a length of 12cm so that 6 cm would go into either side. It probably does not need to be this long to hold the tubes together, but the longer length helps to align the two tubes. It weighs 42 grams. The left over piece of coupling will be used to join the nosecone to the rest of the body tube.


5, 6 and 7 wrap couplers made for test fitting.

Components going into the nosecone
section of the deploy mechanism.
Small fiberglass coupler.

Nosecone components assembled.
 

Today we also bought more of the 85gsm cloth, but the local supplier does not stock it in the 965mm widths any more, but only 550mm widths. Dang! So we bought 10m of the 550mm width, and will roll it length ways to get the longer tubes. We also bought a couple of meters of peel ply, so we'll give that a go to see how well it works and how much lighter we can make the tubes.


1 October 2011 - We cut the tube we used for the pressure test in half and will now rejoin it with the coupler. We'll then again hydro test it to check for leaks and strength. Due to the length of the rocket, we will be making it from two long tubes, and these will be joined with one coupler.

 
Test tube cut in half, ready for gluing
back together again.

Two ends of the tube with 6 wrap coupler
in between.

Tube re-assembled, but not yet glued.

We also made a couple of fin guides today using a Dremmel tool to better align the fins on the rocket. We haven't had a lot of luck usually getting them aligned by eye so we are taking our time to do it properly this time. We took a couple of sheets of MDF and screwed them together and then cut all the holes and slots at the same time to make sure they were exactly the same.


MDF Fin guides.

Test fitting fin guides with fins.

Another view of the fin guides.
 

2 October 2011 - We glued in the first end of the coupler today with the high strength epoxy.


3 October 2011 - We took advantage of the long weekend, and spent a few hours in the workshop to machine the nozzle and parts of the launcher. This rocket requires us to build a completely new launcher capable of holding the higher pressures and exactly fitting the new nozzle. The nozzle thread here is a little longer than what it will end up. After we do the pressure test on the tube, we will machine the hole for the nozzle in the end plug, and then cut the nozzle thread to length.


Machining the nozzle from aluminium.

Dad hard at work.
   

The nozzle seat is made from brass as it will be soldered to the copper launch tube, while the nozzle is made from aluminium to reduce weight. As is the nozzle weighs 24 grams, but will most likely loose 3 grams.


The nozzle seat on the left and the
nozzle on the right.
 
End view of the seat and nozzle.

Nozzle sitting on the seat.

We also glued the other section of the coupler to the other half of the tube. We will leave it for 3 days before pressure testing again.

Gluing the two parts of the test tube back together using the coupler.
     


4 October 2011 - We have been looking at the deployment mechanism again in detail, and with the expected acceleration profile, we were getting less confident that the nosecone would stay in place. So we’re going back to the piston ejection method originally considered. This evening we spent a couple of hours building a prototype to see how much force and travel we can get from the piston. The results were promising, so we’ll build a proper version in the coming days.

We also bought more copper tube for the launcher, as well as a 34mm PVC pipe that will be used as a mandrel for making one of the launcher components.


5 October 2011 - Fiberglassing components. Tonight we rolled a thick fiberglass tube that will form a part of the release mechanism on the launcher. We also rolled another coupler that will be used for the flight hardware. We added a couple of wraps of the 85gsm cloth to the outside of the join on the test tube. And lastly we made up another balsa sandwich with two 200gsm cloths either side. This will be used to build the main support frame for the ejection mechanism.

 
Balsa sandwich, coupler, reinforced test tube join and
launcher release tube.

Launcher release tube after it's come off the mandrel.
 

6 October 2011 - Continued to prototype the ejection mechanism today. The piston shaft is made from a thin walled aluminium tube. The piston shaft guide is also made from an aluminium tube that snugly telescopes into the piston shaft. The spring is just threaded onto the piston guide. The guide extends the full length of the piston shaft to keep it aligned through the entire stroke of the piston.


Prototyping piston ejection mechanism from scraps.
     

7 October 2011 - Spent a few hours making the flight hardware for the ejection mechanism. The system is working quite well with quite a bit of force to eject the parachute. How it will work when it's all finally assembled is still to be tested. We will be triggering this mechanism using a servo motor, the Servo Timer II and the uMAD from Whooshtronics to detect apogee. These will be mounted on the back of the board. We are using aluminium brackets here to withstand the high g-loads during launch.


Ejection mechanism in the stowed position.

In the extended position.
   

8 October 2011 - We hydro tested the rejoined tube today to 500psi (34.5 bar) and the tube held without bursting or leaking. This is a good result which means we can now go ahead and build the rocket pressure chamber. We need to cut the test tube open so we can get at the end caps so we can re-use them for the rocket.

Dad also machined two more components for the launcher today. The release grip ring and the The release grips will be attached inside the small fiberglass tube with epoxy and screwed down with 8 screws. When the glue is cured we will cut the release grip ring length ways into 8 sections along with the fiberglass tube to give us a Clark cable-tie like arrangement. The bottom of the tube will be again be epoxied and screwed down to the other launch tube adaptor.


Testing the rejoined test tube.

Still holding at 500psi.

Launch Tube adaptor on the left and
release grip ring on the right.
Surface grooves are for better glue adhesion
 

9 October 2011 - We rolled the payload bay tube with 7 wraps of the 85gsm cloth. 330mm wide and 660 long x 2. Then used two wraps of peel ply. The tube weighs 61g for the 300mm. The surface finish was nice and even but the texture is a little rough so it will need to be sanded. The tube is fairly light weight so the peel ply did it's job. The peel ply was relatively easy to pull off.
 

Tube off the mandrel with the peel ply.

Pulling off the peel ply.

Payload bay trimmed. The inset
shows the texture
 

We also wrapped extra reinforcement fiberglass strips to the launcher tube. We needed to build up the wall thickness as it will have countersunk screws in it.


10 October 2011 - We attached the deployment mechanism bulk heads. These really don't provide any support, they just keep the whole mechanism centered within the tube. They are also made from the fiberglass sandwich. The payload bay tube was trimmed square. We weighed the entire nosecone assembly with all the components including parachute and it came in at approximately 300grams, which is about the ball park figure we were expecting.

We also experimented with the nosecone coupling so that it comes off easier. The coupling itself will be fairly loose but will have a small strip right near the nosecone so that it is held firmly, but the piston only needs to push the little section before the nosecone is free to move. 
 


11 October 2011 - We tested the deployment mechanism with the servo controlling the release arm. The servo is strong enough to activate the release arm which was a good thing. We tried to eject the parachute several times, and in most cases it was getting ejected well, but on a couple of occasions the nosecone didn't come off because it was wedged in too tight into the payload bay tube. We just used electrical tape on the coupler to increase the friction between the tube and nosecone so that it would stay in place. We are quite aware that the nose cone could drag separate so we don't want to make it too loose. There is a rule of thumb in the pyro rocket world that you should be able to hold the rocket by its nosecone and the rest of it should not separate. That's kind of hard to test without the rest of the rocket at the moment. :)


Deployment mechanism extended

Deployment mechanism in it's stowed position
   

12 October 2011 - The day has finally arrived when we rolled our first full length tube that will be used on the rocket. It was made from 3 sheets of 550mm x 110mm 85 gsm cloth. We used exactly 6 pumps of the West Systems epoxy. This was enough to give the tube a reasonable finish that will require some sanding but not too much. We had to work quickly to get it done before the glue started to set. The whole thing then went onto the rotisserie for a couple of hours and then the mandrel was stood on it's end to try to keep it straight while the epoxy cures. We'll leave it for 24 hours on the mandrel before attempting to remove it. Because we only had the heat lamps set up for short tubes, we had to move the lights every 10 minutes so the whole tube was evenly heated.


Getting ready to roll the first full length tube.

Tube on the rotisserie.
   

We also measured the ejection force of the deployment mechanism. Just as it releases it is pressing with about 3.2Kg onto the nosecone. Which is probably not quite enough force to be reliable. We stretched the springs a little, but that didn't help much. We are going to try to find a stronger spring so that we can get up to around 5Kg of force. Still the way the system is working with the current springs is that it shoots the nosecone about 1 meter from the rocket.


13 October 2011 - Took the long tube off the mandrel today without any issues. At 1110mm it weighed in at 325grans which is about 20 grams heavier than originally thought, but there is a little more glass on it - about 50mm more and also a good amount of epoxy, but at least it is stronger. We're quite happy with the result because the tube is nice and straight and is quite strong. One of the biggest concerns was that it would be flexible - a major issue with our previous FTC experience. We'll give it a few more days to cure and then we'll sand it trim and sand it. 


Tube off the mandrel with the glad bake removed.
     

15 October 2011 - A busy day today. We machined the fiberglass release tube to make it nice and round at the ends. We also cut up pieces of the copper tube for the launcher release mechanism. Although after looking at the pipes we may change the layout a little bit. We also rolled the second long tube.


Launcher components with fiberglass
tube on the right.

Rolling the second tube. Dad pours the
epoxy while I roll it out. Definitely much
easier with two people.

End plug retainer rings
 

Then dad took the test end plug and machined the nozzle thread into it. We also tapered the internal wall of the end plug towards the nozzle opening to let the water and air flow easier.

 
Aluminium nozzle screwed into the
PVC end plug.

The inner edge of the nozzle is rounded
for better flow efficiency.

Side view

16 October 2011 - We made another coupler as the one we were going to use was a little tight and would have needed a lot of sanding. It was just easier to roll a second tube. This coupler was made from 2 x 550mm pieces of 200gsm cloth and used 1 pump of the epoxy. We sanded and trimmed the main tubes. The two tubes weighed in at 308 and 297 grams. 

   
Two sanded main pressure chamber tubes.
 

18 October 2011 - We sanded and trimmed the coupler. The coupler weighs 42 grams. Putting together the two tubes, the payload bay and nosecone we get a rocket length of 2580mm or 8.5 feet.


It doesn't look that big here, but it looks big in real life.
     

19 October 2011 - Before gluing all the components together I spent some time doing up the tech drawings of all the components. Even though we had the original tech drawings from which we made the components, decisions are made during manufacture that will deviate from the original drawings. This way we have the exact dimensions of the final components should we need to make them again.


20 October 2011 - We wanted to get the ends of the tubes nice and square so that the whole rocket goes together straight when assembled. Because the tubes were too long to fit on our lathe, we set them up on the rotisserie and had them turn slowly, and then we solidly mounted the dremmel with a sanding wheel and let the dremmel grind the end of the tube as it rotated. This gave very good results. We trimmed both ends of the tubes as well as the payload bay tube.


21 October 2011 - We glued the endcaps into the tubes in much the same way as we did for the test tube with the super strength epoxy. The nozzle is recessed into the tube so that it will be protected when the rocket lands tail first. The top retaining ring extends past the top of the tube to allow the payload bay to be mounted. This will most likely be attached with a set of screws.

 

Nozzle glued into place

The retainer ring extends past the bottom
of the nozzle to protect it during landing

Top endcap glued into place. It extends
above to allow the payload bay to be
attached.

End view of end cap.


22 October 2011 - We sanded down the new coupler for a nice snug fit, and trimmed the edges nice and square. We also glued the retaining ring into the fiberglass release tube with the super strength epoxy.


Retaining ring glued into position

Fiberglass launcher release tube.
   


23 October 2011 - Dad came over to work on the launcher base and release ring.
We are using our old Medium launcher as the base for this launcher, but it will be fitted with the new release head.


Launcher base components

The solid base will be attached to the bottom
of the launch tube.

The two components will be soldered together.
 

The release ring is made out of a 4mm thick brass ring. This should be strong enough to hold the pressure. It will be interesting to see how easy it is going to be to pull back under pressure. We will again have a lever to make the job a little easier.


Launcher release ring.
     

6 November 2011 - We glued the coupler into one of the pressure chamber tubes with the super strength epoxy. We also cut the 16 1/8" threads into the release head and counter sunk them. Along with that we cut the screws to their correct length. These will be epoxied in place. They are there to serve as a backup to make sure the segments of the retainer ring don't come off under pressure. Each of the segments needs to hold about 12Kg. We then cut the retainer ring into segments and the top portion of the fiberglass tube into strips. We were happy that the retainer ring fit well over the nozzle as we haven't been able to test it until now that it was cut up. The release ring also fits well over the release head and seems to be releasing just fine. We'll see how well that works under pressure.


Tapping 16 holes in the retainer ring.

Screws cut to length

Slots cut into the fiberglass ...

... and retaining ring. Each segment
can now flex back to release the
nozzle.

We also worked on the launcher base and soldered together the riser tube, the base plate and the air manifold. We also made a pair of pulleys for the release rope. The release ring also now has a pair of brackets to attach the release rope to. We had to do this as the release ring slides almost entirely inside the rocket.

We are going to have to pressure test the rocket at the same time as the launcher as they are both needed by each other to make a seal.


Launcher base and air manifold
soldered together.

Release ring with brackets.
   

8 November 2011 - We glued the pressure chamber together with more super strength epoxy. We used 3 right angle 1m long aluminium brackets to keep the whole joint straight while the glue cured. The whole pressure chamber was kept vertical during the curing process to keep any internal runs of glue evenly spread.

We also glued in the screws for the release head to make sure it is as strong as possible.


Gluing the pressure chamber
into one piece.

We used Aluminium right angles to
keep the joint nice and straight.

Screws glued in place.
 

9 November 2011 - We drilled and cut threads for the release tube spacer. This spacer will be soldered to the launcher tube first and then when everything is aligned we will epoxy the fiberglass tube to the spacer, and also screw it down with 8 screws. Hopefully that will be enough.

We weighed the pressure chamber and it has come in at 833 grams. This is about 90 grams more that initially predicted, but some of it is likely the result of the tubes being a little longer. We still need to measure the capacity of the rocket. Paint will also add a little more weight.


Test fitting all the components

Pressure chamber almost
ready for testing.

Bottom of the fiberglass tube is
screwed down. Eventually it will
also be glued down with epoxy.

Someone is going to have to clean
up the mess. ... busy day in the workshop.

10 November 2011 - We soldered the launch tube and nozzle seat to the rest of the launcher along withe fiberglass tube spacer. We also decided that we would use the quick launcher as the base for the rocket rather than the medium launcher, as it meant that we could complete it sooner and it has certain advantages. At first I didn't want to use the rail buttons on the rocket to keep it clean aerodynamically, but decided that was going to make other things more difficult. We are going to attach the rail buttons only temporarily for the first few flights.

We made an adaptor plate for the quick launcher and mounted the new launcher to it. That completes the bulk of the launcher construction. We still have to add the release lever to the launcher, but it should be ready for pressure testing soon.

 
Finished soldering all the major sections together.

The launcher has a 1.5m long launch tube.
 


17 November 2011 - We glued a whole range of things today. We reinforced the join the the pressure chamber tube with a couple of wraps of the 85gsm glass. We glued the shock cord loop to the nosecone, the shock cord tube to the payload section. We also glued the support ring to the ejection mechanism, and the bulkhead to the nosecone. We also mixed the epoxy with the micro balloons to make a paste and filled the holes in on the fins.

In an effort to try to create a stronger force for deployment, I added a second spring under the ejection plate as there was still room. This will help the nosecone separate, while the existing spring will push the parachute out.


Loop on nosecone attaches to shock cord
 
Carbon fiber shock cord tube attaches the
entire rocket to the parachute. A knot at the end
of the shock cord prevents it from coming loose.
 

The shock cord tube glued to the inside wall of the payload bay is intended to hold the end of the shock cord clear of the ejection piston. If the shock cord was attached further down then parachute opening may pull the cord against the piston and bend it. This presented a problem of how to fit the nosecone coupler into the payload bay tube, and so a slot needs to be cut in it. The slot produces a little weakness, but because of the thickness of the coupler and that it is supported by the bulkhead it is strong enough.


18 November 2011 - We attached the sled to payload bay with 6 x 1/8"counter sunk screws. These should be enough to support the weight of the entire sled and parachute during max acceleration. The parachute and sled will weigh around 5Kg during peak acceleration. We attached the servo timer II and uMAD to the back of the sled and wired them up to a temporary power supply for testing. I have some 100mA LiPo batteries on order so we will use those to power, the uMAD, servo timer and the zLog altimeter. The altimeter, HD camera and power supply will all be located in the lower payload bay.


Servo Timer II and uMAD
attached to the sled

reverse view
   

19 November 2011 - We've put together a video to show how the deployment mechanism works. It will be interesting to see how well it actually works in flight and under high-G conditions. We do not have a back up parachute deployment mechanism on this rocket so it's all or nothing. The springs provide about 50N of force to separate the nosecone. We have to find a good balance on the friction fit of the nosecone as too little friction poses the risk of the nosecone separating after burnout. (We are expecting around -2G) Too much friction means that the spring may not be strong enough with the added air pressure to push the nosecone off.


20 November 2011 - We sanded and painted the fins with primer today. We also performed the first dry low pressure test of the launcher and pressure chamber together. This test was intended to do a basic leak check on all the components and seals. We held the 30psi for about a minute with no leaks. We will need to do a full pressure test next to see if the components will withstand the launch pressure.


Fins painted with primer

Low pressure leak test of
launcher and rocket
   

23 November 2011 - Today we made a test stand for pressure testing the rocket, launcher and release mechanism. One of the major unknowns is how easy it will be to release the rocket at the high pressure. The test stand consists of a long piece of wood with a stop at either end. The rocket will be filled with water and placed on the launcher. This will then be placed into the test stand and pressurised. There is just enough room for the launcher to move about 1.5cm so that upon release the o-ring on the launcher will clear the nozzle and allow the water to escape around the launch tube. At full pressure the the launcher would be pushed out with a force of around 1000N.


Rocket and launcher on
the test stand
     

24 November 2011 - We made a temporary wooden release lever to pull down the locking ring. We wanted to get an idea of how hard it will be to pull back the ring at full pressure. We hydro tested the launcher and pressure chamber to 335psi and held it there for a while to make sure it sealed well. We were happy that all the seals worked as they were supposed to and the tube did not blow up. This was the first time we've had a tube this long pressure tested. The lever was very easy to pull back and it released the rocket without a problem. The rocket moved just enough for the o-ring to come free of the nozzle and the water slowly drained from around the launch tube. This was a relief as we couldn't attach the payload bay or fins until the pressure test was complete.

We also made a pair of small lightweight rail buttons that will be attached to the outside of the rocket.

 
 

Temporary release lever set up for
pressure and release test.

Launch rail buttons to be attached to
the outside of the pressure chamber.

6 December 2011 - We spray painted the nosecone with bright orange. If it becomes separated from the rest of the rocket it should be easier to find. We just used regular Dulux gloss enamel spray paint.

We also attached the payload bay to the pressure chamber. This is accomplished with 10 x 1/8" counter-sunk screws. We cut the screws to length so they are about 5mm long. We tapped the holes in the PVC ring sticking out of the top of the pressure chamber.

During the week we also received our 100mAh LiPo batteries that we'll use on the rocket. The 70mAh ones probably would have been sufficient, but this way we have a little more capacity margin without too much extra weight. Together they weigh only an extra 4 grams.


Payload bay attachment holes

Prepping fins for gluing. Here they
are painted with primer.

Painted nosecone

The black loop attaches to the
shock cord


10 December 2011 - We measured the capacity of the pressure chamber today by weighing the amount of water that would fit in. The rocket has a capacity of ~5.8L.

We also started gluing the fins on today. The fin guides definitely made it easier to hold everything in place and keep the fins aligned. It also allowed us to attach all 3 fins at the same time. We put a small bead of epoxy along the fin edge and then pressed it into place. After the epoxy cured we removed the fin guides and used the super strength epoxy mixed with the micro balloons to form the first set of fillets. We used electrical tape as masking tape to keep the fillets neat.


Setting up the fin guides.

Fins in place held with shims.

Side view

After the glue has cured we add
the fillets.


11 December 2011 - We spray painted the payload bay. The first painting pass was a dismal failure as the surface tension on the paint prevented it from filling tiny little holes left over by the peel ply. After the first couple of coats dried I thought I would just use some auto putty to fill in those holes and re-spray it. Turns out the putty is a great paint stripper! Well after half an hour of sanding to remove ALL the paint I was ready to start again. This time I used the spray on putty and several coats later and sand with 400 grit sand paper it was ready for the normal paint.
 

Painting the payload bay

The business end of the rocket
here you can see the fillets on the fins
     

 

 
Assembled rocket.
The lower half of the rocket
is not painted yet.

Size comparison.

Another view
 

We also worked on the launcher to mount a more permanent release handle. We used the inside of a couple of electrical connectors as rope stops so that we could easily adjust the tension on the pull down string. This was much easier than making knots in the string. The launcher is just about finished with one more little support to be added that keeps the release ring up until the rocket is pressurised.


Whole launcher.

Release mechanism in the
locked position.

Release position
 

17 December 2011 - We washed the rocket with warm water and detergent to clean it ready for painting and let it thoroughly dry. We suspended the rocket on a pair of hooks so that we could rotate the rocket while painting. After the adventures of painting the payload bay we went straight for the spray-on putty. I think we gave it about 3 or 4 coats and then let it dry.


Rocket washed with
warm water and detergent

Several coats of spray putty later.
   

19 December 2011 - We first lightly sanded the spray on putty with 400 grit sand paper to give us a nice smooth finish. The dust was then just wiped off with paper towels. We spray painted the rocket body and fins with the same bright orange gloss enamel as the payload bay. This Dulux paint has pretty good coverage so only 2 coats were necessary for a good finish. We also cut the 10 payload bay attachment screws to size.

The black band on the rocket is black tape. This was area was masked while painting so that we can inspect the o-rings through the wall of the rocket. This is done at both ends of the rocket. The middle image below shows the 10 screws used to attach the payload bay to the rest of the rocket. The empty holes are where we attach the deploy mechanism.

We are only taping the rail buttons on at the moment to allow us to take them off on later flights for less weight and drag, as we will most likely only use the launch tube to guide the rocket.


Applying the top coats in bright orange

Attaching the payload bay by 10
countersunk screws.

Rail buttons are temporarily
taped on so later we can launch
the rocket using only the launch tube
 

26 December 2011 - With Christmas celebrations mostly out of the way, we made a short video that explains how the launcher works and how the rocket is loaded onto the launcher. The rocket still needs a few more decals.


Shadow on it's launch pad
   

4 January 2012 - We reinforced the shroud line attachment points today. Previously each shroud line was tied through a piece of folded over electrical tape, but we decided to reinforce these because we are expecting the parachute to open at a greater speed. We used two layers of cloth tape with very sticky glue. We are hoping the tape is stronger than the electrical tape because of the added fibers. We also put heat shrink tubing over the loose ends of the shroud line knots to stop them getting caught on things.


Reinforced shroud line attachment points
     

18 January 2012 - Worked on the payload bay today. Initially we were going to use Coriflute to make the payload bay framework, but then decided to go with 2mm thick cardboard as it meant we had more room to fit everything in. The cardboard frame will be sitting directly on the end cap of the rocket. We still need to figure out how we keep it from moving upwards during deceleration. The camera has been angled downward since that's where the most interesting things are to see. We also pointed the camera directly away from the guide rail so you could see the launch string being pulled. We enlarged the hole around the status LED on the camera so it was easier to see from an angle.


20 January 2012 - Continued to work on the payload bay framework. We have fitted the battery, altimeter and camera to it now. It also has a single power switch that turns on the servo timer, altimeter and uMAD. The power source consists of two 100mAh 20C LiPo batteries. We also added a charging connector to make it easier to recharge the batteries in place. The uMAD is powered by one of the cells, and the servo timer and altimeter are powered by both cells.


Payload bay with camera on top secured
held down with double sided tape and
secured with wire ties.

The z-log altimeter is mounted
at an angle to allow us to plug
in the USB cable. Power switch
is on the right.

This side has the two LiPo batteries
and deployment mechanism power and
recharge connector.
 

22 January 2012 - After discussions about how the uMAD is performing in some directions, we decided that we should have timer as a backup to deploy the parachute. Since there really isn't enough room for a fully redundant system, we decided to do a firmware upgrade for the Servo Timer II so that it could be triggered by both the timer and the uMAD. Luckily it was a simple change. We have also decided that the timer should be triggered by the break wire option rather than the internal g-switch since we don't know what the rocket is going to do while pressurising and we would like to avoid any false triggers if possible. We also don't know how the built in G-switch will handle the very high acceleration, The firmware was updated so that if the timer fails to trigger due to some problem with the break wire, the uMAD should still be able to trigger the servo timer to deploy the parachute. Having the extra bit of redundancy should also help if the high acceleration causes the uMAD to malfunction.

If you have a uMAD and the STII and are interested in the firmware update please let us know and we will send it to you.

Not shown in the pictures below is the safety line that goes from the top of the bulkhead, through the payload bay and connects to the main parachute line. This line is a backup should the shock cord break away from inside the tube, or the entire payload bay gets ripped off the rocket during a high speed deploy.


Payload bay sitting in the end of the
body tube. The black band represents the
location of the top bulkhead.

Here you can see the angle the
camera is mounted at.
   

8 February 2012 - We cut all the holes in the payload bay tube in order to access all the buttons and switches to operate the equipment. It's looking a little like Swiss cheese.


Access holes for the altimeter.

Access holes on the other side
for the power switch and camera.
   

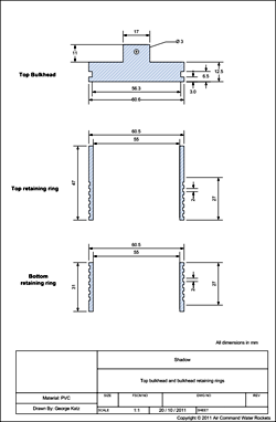
9 February 2012 - Here are some technical drawings of the various components used on the Shadow and launcher.

Top Bulkhead and retaining rings

Nosecone

   

 

Payload bay body

Launcher Release Tube

   

 

Launcher components

Nozzle Bulkhead and nozzle

   

 

Launch tube, and release ring

Assembly Drawing - how it all fits together

   
 

Bulkheads and base plate

Support

   
 

 

   
 

 

 

   

12 February 2012 - First Test Flights! The full flight report is here: Day 115

With repairs necessary to the rocket, we have started a new build log page as this one is getting too long. Here is the Shadow II build log

 

      Back to top     Next >>



Copyright © 2006-2024 Air Command Water Rockets

Total page hits since 1 Aug 2006: